Click on different parts of the floor plan to see where things are in the library.

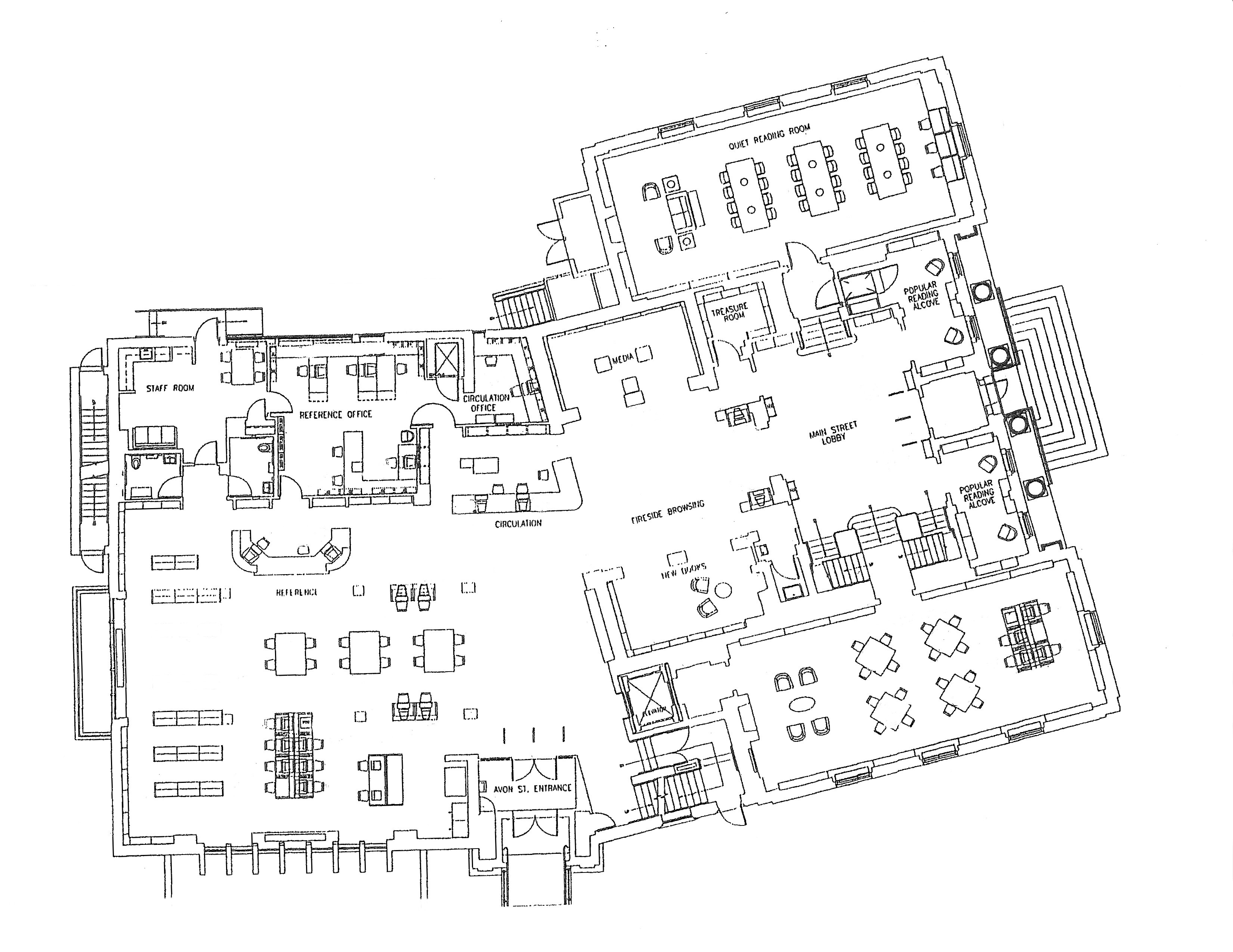
Main Floor

Main Floor
Large Print Books Graphic Novels for Adults Blake Gallery Reference Desk Document Center Career and College Collection Red Room - Local History and Quiet Study Public Rest Rooms Staff Offices Public Elevator Paperback Alcoves Books with a Buzz! Treasure Room New Fiction New Nonfiction Water Bubbler Media Alcove Circulation Desk Magazines and Newspapers Gold Room Avon Street Entrance (Handicapped Accessible) Main Street Entrance (NOT Handicapped Accessible) Pay Phone Book Returns Public Computers and Study Space Avon Street Stairs Main Street Stairs World Languages Collection Library Information Area

Large Print Books

Books with extra large type for people with vision impairments.

Graphic Novels for Adults

This collection includes books that are written in comic book format.

Blake Gallery

Named in Memory of Michael Blake, a long time Friend of Beebe Library, this area has comfortable seating and art exhibition space.

Reference Desk

Ask reference librarians for help with any aspect of our collections or services.

Document Center

Sponsored by the Friends of Beebe Library, our document center includes equipment for photocopying, document scanning, faxing, and microfilm scanning.

Career and College Collection

Books about choosing a career, applying for jobs, resumes and interviewing, as well as college guides and test preparation guides.

Red Room - Local History and Quiet Study

This room contains materials on the history of Wakefield and Massachusetts and is also used for quiet study.

Public Rest Rooms

Staff Offices

Public Elevator

Paperback Alcoves

Paperback books, including general fiction, nonfiction, mysteries, and romances.

Books with a Buzz!

On the table in the lobby you'll find, first come first served, multiple copies of popular titles that can be checked out for up to two weeks with no waiting lists.

Treasure Room

Closed archives of Wakefield historical materials. Ask a librarian for assistance.

New Fiction

Our latest acquisitions of current fiction.

New Nonfiction

Our latest acquisitions of current nonfiction titles and biographies.

Water Bubbler

Media Alcove

Our collections of DVDs, music CDs, and audiobooks.

Circulation Desk

Check out and return materials, pick up items you have on hold, or ask for general help.

Magazines and Newspapers

Gold Room

Comfortable seating and study space, as well as our magazines and newspapers, and our college and career collections.

Avon Street Entrance (Handicapped Accessible)

Main Street Entrance (NOT Handicapped Accessible)

Pay Phone

Book Returns

You may return materials at any time in our four book drops at the Avon Street entrance, whether the library is open or closed.

Public Computers and Study Space

Avon Street Stairs

Main Street Stairs

World Languages Collection

Books in a variety of languages other than English, including Spanis, French, Italian, Russian, Chinese, and Arabic.

Library Information Area

Brochures and flyers about Beebe Library collections and services.

Lower Level

Lower Level
Program Room Lecture Hall Rest Rooms Children's Rest Rooms Digital Media Lab Young Adults Area Short Stories Staff Offices Custodian Youth Services Desk Adult Fiction Volunteers' Office Public Elevator Water Bubbler Children's Paperbacks Children's Biographies Children's Nonfiction Comfortable Seating Public Computers Public Computers Children's Fiction Children's First Readers Children's Paperbacks Toddlers' Area Children's DVDs Children's Magazines Children's Reference Books Children's Audiobooks Children's Holiday Books Avon Street Stairs Main Street Stairs Emergency Exit Emergency Exit

Program Room

Lecture Hall

The largest of our three public meeting rooms seats up to 75 people and has an attached kitchenette and built-in projection system.

Rest Rooms

Men's and women's rooms can be found just outside the Lecture Hall. Rest rooms are available on all floors. There are also children's rest rooms on the Lower Level near the train table.

Children's Rest Rooms

These rest rooms have fixtures sized for small children.

Digital Media Lab

Young Adults Area

This area includes books, games, and music for teens.

Short Stories

Collections of short stories by different authors.

Staff Offices

Custodian

Youth Services Desk

Come here for help finding anything in the Youth Room, or for information about programs for kids and teens. Children's books should be checked out upstairs at the Circulation Desk.

Adult Fiction

This collection includes fiction books for adults shelved alphabetically by the author's last name.

Volunteers' Office

Public Elevator

The elevator connects all three floors of the library building.

Water Bubbler

The water fountain is located just outside the Lecture Hall. A water fountain can be found on each floor.

Children's Paperbacks

Children's Biographies

Children's Nonfiction

Comfortable Seating

Public Computers

The Library has 25 public computers with Internet access, Microsoft Office, and high speed laser printers. They can be used for up to three hours per day.

Public Computers

The Library has 25 public computers with Internet access, Microsoft Office, and high speed laser printers. They can be used for up to three hours per day.

Children's Fiction

Children's First Readers

Children's Paperbacks

Toddlers' Area

This section includes picture books for the youngest children, as well as the Parent's Collection, and the very popular Train Table.

Children's DVDs

Children's Magazines

Children's Reference Books

Children's Audiobooks

Children's Holiday Books

Avon Street Stairs

Main Street Stairs

Emergency Exit

Emergency Exit

Second Floor

Second Floor
Rest Rooms Trustees Room Staff Offices Administrative Offices Storage Biographies Comfortable Seating Avon Street Stairs Nonfiction 000-299 Nonfiction 300s Nonfiction 400s Nonfiction 500s Nonfiction 600-629 Nonfiction 630-699 Nonfiction 700s Nonfiction 800s Nonfiction 900s Public Elevator Emergency Exit Main Street Stairs and Hallway Water Bubbler Study Carrels Atrium

Rest Rooms

Men's and women's rooms are at the far corner of the nonfiction stacks. Restrooms are available on all floors.

Trustees Room

One of our three public meeting rooms, the Trustees Room seats about 15 people around a conference table.

Staff Offices

Administrative Offices

Storage

Biographies

Biographies are arranged alphabetically by the last name of the person they are about.

Comfortable Seating

Avon Street Stairs

This stairway connects with the Main Floor near the Avon Street Entrance.

Nonfiction 000-299

This section includes books on computing, philosophy, the occult, psychology, and religion.

Nonfiction 300s

This section includes books on social sciences, finance, law, government, education, crime, and etiquette.

Nonfiction 400s

This section includes books on English grammar, foreign languages, and ESL.

Nonfiction 500s

This section includes books on the natural sciences: astronomy, chemistry, physics, mathematics, biology, and zoology.

Nonfiction 600-629

This section includes books on health and medicine, diet and exercise, and technology (electronics, cars, trains, planes, space travel, firearms).

Nonfiction 630-699

This section includes books on gardening, cooking, home repair & construction, and business & management.

Nonfiction 700s

This section includes book on the fine arts: architecture, painting & drawing, crafts, antiques, music, performing arts, and sports.

Nonfiction 800s

This section includes books on literature: writing, poetry, plays, and criticism.

Nonfiction 900s

This section includes books on history and travel.

Public Elevator

The elevator connects all three floors of the Library building.

Emergency Exit

Main Street Stairs and Hallway

These stairs connect the Main Street Lobby with the second floor via a hallway that goes by the Trustees Room.

Water Bubbler

The water fountain is located just outside the Second Floor Rest Rooms. A water fountain can be found on each floor.

Study Carrels

There are study carrels available throughout the building. All are equipped with study lights and electrical power.

Atrium

The atrium lets natural light in to the Second Floor and the Reference Area on the Main Floor.